Sponsored Links

Previous | Next | Discuss :: Free Advice (General Feng Shui)


Topic: Wall protusion and poison arrows, 2 Attachments
Conf: Discuss :: Free Advice (General Feng Shui), Msg: 11266
From: Anon (Hidden from Privacy)
Date: 5/28/2002 07:03 PM

DEAR CECIL:

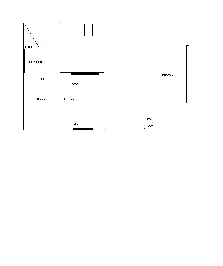
I'D LOVE YOU TO CLEAR MY DOUBTS UP.MY BEDROOM HAS A WALL PROTRUSION THAT CAN BE SEEN AS A POISON ARROW ( SEE ATTACH DRAWINGS).BESIDES THAT MY BEDROOM HAS SLOPING CEILING ( I HAVE PLACED TWO CHINESE FLUTES ON THE WALL) MY BED IS AGAINST THE SMALLEST WALL . BECAUSE PART OF MY BEDROOM IS IN THE EAST I'VE PLACED A METAL CLOCK AND
SIX CHINESE COINS HANGING ON THEWALL. MY FIRST QUESTION IS: HOW CAN I AVOID THE POISON ARROW? THE SECOND. HAVE I DONE THINGS ALRIGHT REGARDING THE EAST SECTOR?. MY THIRD QUESTION HAS TO DO WITH THE STAIRS.IN THE LANDING OF THE STAIRS I'VE PLACED A SMALL RECTANGULAR MIRROR AND IN THE EXTERIOR SIDE OF MY BATHROOM DOOR I'VE PLACED A BIG MIRROR ( ALMOST THE SIZE OF THE DOOR). IS THIS O.K.?
WE USE THE SPACE BELOW THE STAIRS AS STORE ROOM, THIS PLACE HAS TWO WOODEN SLIDING DOORS.THIS STAIR IS VERY DARK AS IT HAS NO NATURAL LIGHT, I'M PLANNING TO PLACE A RED CARPET TO ENHANCE THIS , APART FROM PLACING SOME ADDITIONAL LIGHT
AM I DOING THINGS RIGHT? SHOULD I CHANGE ANYTHING?
THANKS A LOT FOR YOUR ADVISE

Click to open!Dibujo 1.jpg
(19,536 bytes)

Click to open!Dibujo 2.jpg
(22,017 bytes)

Copyright 1996-onwards Geomancy.Net, Cecil & Robert Lee. All Rights Reserved.

International Copyright & Intellectual Property Rights Notice
All messages posted TO THIS SITE which includes this forum and other contents made accessable by us to the public cannot be copied; reproduced; recompiled; stored in a retrieval system; or transmitted, in any form or by any means; electronic; mechanical; photocopying; recording; or otherwise. - Learn more

Please kindly contact us at support@geomancy.net. if you should encounter any breach of Copyright and Intellectual Property rights. Thank you in advance!

Back to Feng Shui at Geomancy.Net

 [ Site Search | Forum Search | Picture Search | Site Map ]

 

Help Desk: (65) 9785-3171

 

 

 

Highlights

Extend your learning with Master Cecil Lee's Applied Feng Shui Made Easy Book.

" Real People, Real Life, Real Situation " - Learn from thousands of actual case studies at our popular Free Advice Forum.

" Worry-Free Professional Feng Shui Services " - from the authors of Geomancy.Net

[ Award & Accolades ]
 

Site Navigation

Home
   Feng Shui Freebies
   Feng Shui Resources
     Fun with Feng Shui
     Major FS Theories
     Feng Shui Articles
     Feng Shui Advice
     FS Reference
     Slide Show
     Calendar of Events
     Educational Polls
     Site Review
     Yearly Forecast
     Chinese Horoscope
     Popular Topic
   Picture Resources
   Chinese Horoscope
   Personalised Reports
   e-Bookstore
   Feng Shui Courses
   Products & Services
   Consultation Services
   Shop @ Geomancy
   Students Services
   Events @ Geomancy
   Webmaster
   FAQ / Help
   About Us
   Contact Us
   Members Area
   Ask Expert Forum
   Search Website
   Site Tools
   Others Areas
   Live Chat
   Recommend Us
   Site Map

Google SiteSearch

Geomancy.net Web
Search Powered by Google

Sponsored Links